Walle

Walle 113, 8500 Kortrijk
Walle Kortrijk bedrijvencampus

Ondernemen op een unieke erfgoedsite in Kortrijk

Kantoren en KMO-units te koop

Over Walle

In de wijk Walle, ten zuiden van de historische binnenstad, ontwikkelt Futurn een nieuwe bedrijvencampus op de voormalige site van Belgian Industrial Carpets. Deze strategisch gelegen reconversie combineert karaktervol erfgoed met moderne, duurzame bedrijfsinfrastructuur.

Een toekomstgerichte werkomgeving op een zichtbare locatie – ideaal voor ondernemers die willen groeien en investeerders die kiezen voor kwaliteit en waarde op lange termijn.

  • Toplocatie nabij R8, E17 en het stadscentrum van Kortrijk
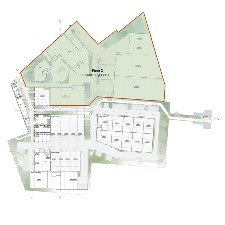
  • 30 bedrijfsunits in nieuwbouw en gerenoveerde erfgoedgebouwen
  • Flexibele units vanaf ±200 m², geschikt voor magazijnen, ateliers, showrooms en kantoren
  • Groene site met verbinding naar park De Blauwe Poort en kantoor- en wooncluster in laatste fase

Geschiedenis: Erfgoed met een nieuwe toekomst

Decennialang was de Belgian Industrial Carpets site het kloppend hart van de textielnijverheid in Kortrijk. Vandaag krijgt dit industriële erfgoed een duurzame herbestemming. In samenwerking met Stad Kortrijk werd een Ruimtelijk Uitvoeringsplan uitgewerkt dat ruimte creëert voor moderne bedrijvigheid met respect voor het verleden.

De karaktervolle voorgevels en fabriekshallen blijven behouden en vormen de ruggengraat van de herontwikkeling. Authenticiteit en functionaliteit gaan hier hand in hand.

 

 

Ligging

Te koop: KMO-units en kantoren

Walle 340 m²
Unit Type Oppervlakte Status Download
BLOK A - Unit 3 Loods 216 m² Te koop
BLOK B - Unit 17 Loods 749 m² Te koop
BLOK C - Unit 24 Loods 340 m² Te koop
BLOK D Kantoor 397 m² Te koop

Werfupdates

Nieuwe fietsverbinding en erfgoed in ere hersteld

11-09-2025

Op Walle in Kortrijk is het nieuwe fietspad die de site doorkruist, afgewerkt. Daarmee is de verbinding tussen Walle en de Doorniksesteenweg gerealiseerd. Vanaf midden oktober, na de oplevering van de studentenwoningen ter hoogte van de Doorniksesteenweg, zal de site ook via deze weg toegankelijk zijn.

De erfgoedelementen werden zorgvuldig in ere hersteld. De iconische schoorsteen zit in de laatste fase richting oplevering en ook de erfgoedmuur met groen gelakte vakwerken is bijna voltooid. Deze muur vormt een unieke schakel tussen oud en nieuw en blijft een van de meest herkenbare elementen van de site.

Intussen lopen de voorbereidingen volop voor de lancering van fase 2. Coming soon…

Zonnige vooruitzichten op Walle!

23-06-2025

Fase 1 werd officieel en feestelijk geopend tijdens ons summer event waarbij alle KMO-units intussen zijn opgeleverd. Een belangrijke mijlpaal voor het bedrijventerrein!

Herbeleef het event

Ook in het erfgoedlint van deze eerste fase schieten we goed op:

  • Eén unit is volledig afgewerkt, enkel de trap en lift in de gemeenschappelijke delen worden nog afgewerkt.
  • Voor andere units is het laatste binnenschrijnwerk in uitvoering en ook daar krijgen de gemene delen de finishing touch.
  • Buiten wordt gewerkt aan de verharding rond de gebouwen.

Daarnaast krijgt het gebouw aan de Doorniksteenweg, waar binnenkort studentenkoten komen, stilaan vorm: de ruwbouw is volop in opbouw.

De laatste ontwikkelingen op de Walle-site

27-02-2025

Oplevering van de nieuwbouwunits

We starten graag met uitstekend nieuws! Vanaf de tweede helft van februari begint projectmanager Ofelia Roels met de oplevering van de eerste units in blokken A, B en C. Dat zijn de nieuwbouwunits in de gebouwen met de baksteenrode gevelpanelen.


Heropstart bouwwerkzaamheden erfgoedunits

We zijn blij te kunnen melden dat we de bouwwerken aan het erfgoedgedeelte opnieuw hebben kunnen hernemen. We stellen dan ook alles in het werk om deze unieke en karaktervolle units voor u gebruiksklaar te krijgen. De bedrijfsunits van Blok B zullen afgewerkt zijn voor oplevering tegen midden april en nog voor het einde van diezelfde maand willen we ook de units in Blok C opleveren!


Waterinstallatie: gekeurd en operationeel

De waterinstallatie is gekeurd en volledig operationeel. Van onze kant uit zijn geen verdere interventies meer nodig. Vanaf nu kunt u rekenen op een correcte watertoevoer in uw bedrijfsunit.

Warmtenet: goed om weten

Ook het warmtenet die de site voorziet van duurzame energie is operationeel en draait op bodemtemperatuur. U kunt nu reeds contact opnemen met een HVAC-installateur van uw keuze om een passende warmtepomp te installeren. Zodoende kunt u uw bedrijfsunit(s) verwarmen en koelen vanaf wanneer u dat wenst!

Elektriciteit: aansluiting Fluvius

Alle nodige infrastructuur is geplaatst! Fluvius zorgt voor de eigenlijke aansluiting en dat zal plaatsvinden in de eerste helft van maart.

Syndicus: Dewaele

We opteerden voor Dewaele als syndicus voor het beheer en onderhoud van bedrijvencampus Walle. De eerste VMEvergadering zal plaatsvinden op vrijdagnamiddag 21 maart 2025.

Mijlpalen in de bouwfase van bedrijvencampus Walle

03-10-2024

De nieuwbouw bedrijfsunits met baksteenrode betonpanelen zullen water- en winddicht zijn tegen eind dit jaar. Blok A, B en C hebben intussen een dak en betonvloeren. Op dit moment worden de poorten geplaatst en het buitenschrijnwerk uitgevoerd.

-

De bedrijfsunits met de typische sheddaken krijgen meer en meer hun definitief uitzicht. De raamopeningen zijn gemaakt, de gevels worden grondig gereinigd en binnen een 2-tal weken gaan de dakwerken aan unit 15 van start.

Update werken

20-08-2024

De staalconstructie en stalen dakplaten zijn geplaatst voor blokken A, B en C. Deze robuuste structuur vormt de basis voor de verdere afwerking.

De karakteristieke baksteenrode betongevels zijn in aanbouw. Met deze betonpanelen behouden we de harmonie tussen oud en nieuw.

Het dak van Blok B en C ligt reeds volledig dicht.

Wat de omgevingsaanleg betreft, starten we aan de riolering, en de uitvoering van de onderfundering voor de wegenis is intussen lopende.

Onze aannemer Vacomet voltooide deze maand de sloopwerkzaamheden rond het erfgoedgedeelte. De detailsloopwerken worden uitgervoerd door MCS bouw. Zij zullen deze maand de gevels reinigen en het metselwerk vakkundig afwerken.

Update werf Walle

06-06-2024

Voor het nieuwbouw KMO gedeelte is aannemer Vanloot gestart met de werken. In het blok B werd de steeldeck geplaatst. Intussen zijn ook de karakteristieke rode betonwanden van blok C te zien. Bij blok A wordt de stalen structuur opgetrokken.

Kick-off Walle 2.0

26-10-2023

Een Kick-off met een grote K. Gisteren ontvingen we in ‘ons’ Kortrijk ruim 150 lokale ondernemers, nauw betrokken stakeholders en sympathisanten voor ‘Kick-off Walle 2.0’.

Met dit event gaven we het startschot voor de herontwikkeling van de oude industriële site waar Belgian Industrial Carpets (BIC) decennialang haar activiteiten ontplooide.

Volgende week gaan de werkzaamheden van start. We gaven meteen ook het startschot voor de verkoop.

Kortrijk Walle: een thuismatch

22-06-2023

Kortrijk Walle in de media: Business Vlaanderen

20-02-2023

Gunther Biddelo en Frederik Baert konden hun ei kwijt over de groei en toekomst van Futurn in Business Vlaanderen regiospecial Kortrijk. In het interview blikken ze vooruit naar de hetontwikkeling van de BIC-site.

Digitaal lezen? https://lnkd.in/e3tcx-8F

In de pers: Futurn en de familie Saelens geven nieuwe invulling aan vroegeren Vlerick en Arne Quinze-site

01-07-2020

Genesteld in het centrum van Kortrijk, tussen het ei en de Doorniksewijk, bevindt zich op Walle een oude industriële site, waar Bic Carpets (Philippe Vlerick) en Arne Quinze in een niet eens zo ver verleden een onderkomen vonden. Vandaag is de wel bekende thinktank Creax van Matthieu Mottrie de belangrijkste gebruiker. De vroegere BIC-fabrieken zijn sinds enkele jaren in handen van de familie Saelens. Samen met de Kortrijkse projectontwikkelaar Futurn van CEO’s Frederik Baert en Gunther Biddelo zal de familie Saelens zorgen voor een nieuwe en aangepaste invulling.

Lees hier het volledige artikel.

Projectinformatie

Locatie: Walle 111-113, Kortrijk

Projecttype: Gemengd binnenstedelijk project

Aanbod: Bedrijfsunits, kantoren, projectgronden voor gebouwen op maat en residentieel

Status: In aanbouw

Architecten: Goedefroo Architects

Interesse? Neem contact op

Wil je ondernemen of investeren in Walle, Kortrijk? Contacteer ons vandaag nog.

François Tack.png

Francois Tack - Sales developer
francois@futurn.com
0474 72 79 77